Продажа дома

Республика Татарстан, с Новотроицкое, ул Энергетиков, 10

140 м²
Площадь
74.9 м²
Жилая площадь
35.50 м²
Площадь кухни
1
Этажность

12 900 000 ₽

92 143 ₽ за м²

ID объявления 12281883

Поделиться

Добавить в избранное

Арт. 89990574. Продаётся готовый дом по семейной ипотеке!

✅ Идеальное жилье для Вашей семьи

Дом уже построен и ждет новых владельцев, готовых насладиться всеми преимуществами комфортного загородного быта.

Почему стоит выбрать этот дом?

✔️ Готовый просторный дом, который можно заселять немедленно, оформляя недвижимость по выгодной семейной ипотеке.

✔️ Возможность внести материнский капитал в качестве первоначального взноса.

✔️ Осталось совсем не много времени до изменений в семейной ипотеке.

Преимущества нашей недвижимости:

???? Местоположение: деревня Новотроицкое, живописный и тихий район Тукаевского района, всего в 10 минутах езды от города.

???? Участок 11 соток включен в стоимость, позволяющий реализовать ваши идеи ландшафтного дизайна и наслаждения природой.

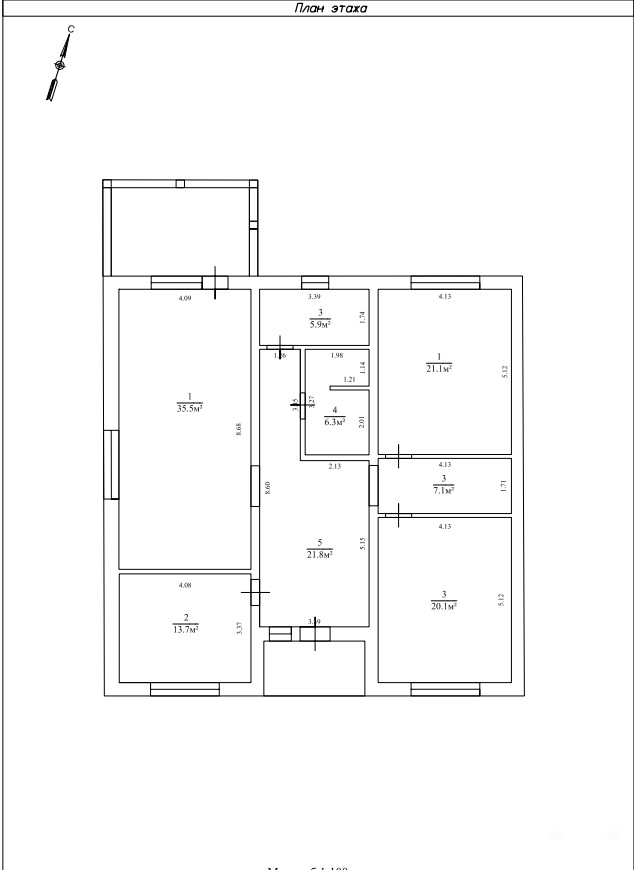
???? Новый просторный дом площадью 140 м²:

???? Просторная и светлая кухня-гостиная площадью 35, 5 м², которая станет центром притяжения семьи и гостей.

????️ Уютные спальни по 21, 1 м² и 20, 1 м² оснащённые большой встроенной гардеробной 7, 1 м² для удобства хранения вещей.

???? Третья комната площадью 13, 7м², идеально подходящая под домашний офис, игровую зону или дополнительную спальную.

???? Большие окна наполняют комнаты естественным светом и создают ощущение простора.

???? Терраса, которую легко застеклить, подарит дополнительное пространство для приятного досуга и завтраков на свежем воздухе.

???? Два раздельных санузла общей площадью 6, 3 м² и 5, 9 м² и котельная добавляют комфорта повседневной жизни.

???? Система отопления обеспечивает комфорт круглый год:

современные газовый и электрический котлы,

радиаторное отопление и теплые полы помогают экономить энергию и поддерживать оптимальный микроклимат.

???? Интерьер выполнен стильно и функционально:

качественный ламинат,

надежная керамическая плитка,

надежные натяжные потолки и качественная сантехника.

???? Прилегающая территория оборудована высоким надежным забором с калиткой и прочными воротами, создавая атмосферу полной безопасности и защищенности.

???? Инфраструктура района отлично развита:

Рядом находятся школа, детский сад и магазинчики первой необходимости.

Городская жизнь доступна в считанных минутах езды.

Ваше будущее семейное счастье начинается здесь! Создавайте историю своей семьи в красивом месте, которое наполнено гармонией и комфортом.

Свяжитесь с нами прямо сейчас, чтобы сделать вашу мечту реальностью!

Дата обновления: 4 декабря 2025