Продажа дома

Республика Татарстан, д Суровка, ул Юности

138 м²
Площадь
92.6 м²
Жилая площадь
1
Этажность
10 сот
Площадь участка

12 650 000 ₽

91 867 ₽ за м²

ID объявления 12204724

Поделиться

Добавить в избранное

Арт. 89136450. Продаётся дом по семейной ипотеке!

Баня с гаражом в подарок!

Материнский капитал принимается в счёт первоначального взноса.

Застройщик компенсирует банковскую субсидию, снижая первоначальный взнос до 20%.

Предлагаем вашему вниманию идеальный вариант загородного жилья для тех, кто мечтает о собственном теплом, просторном и комфортном доме!

Вам просто нужно завезти мебель и жить в своё удовольствие!

Что мы предлагаем?

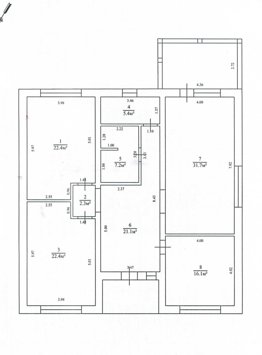
— ️ Новый, просторный и уютный дом площадью 140, 6 кв.м, расположенный в живописной деревне Суpовка, Тукаевский район.

— ️ Участок 10 соток позволяет насладиться тишиной и чистым воздухом вдали от городской суеты, входит в стоимость.

— От дороги до дома бетонная дорожка

— ️ Просторная кухня-гостиная 31, 7 кв.м станет местом семейных вечеров и праздничных встреч, две комфортабельные спальни размером 22, 4 кв.м. с нишами под гардероб, обеспечивая максимальное удобство хранения вещей и комната 16, 1 кв.м. .

— ️ Два раздельных удобных санузла общей площадью 7, 2 кв.м и 5, 4 кв.м дополняют комфортные условия проживания.

— ️ Современная система отопления представлена двумя котлами (газовым и электрическим), установленными радиаторами и тёплыми полами, обеспечивающими максимальный комфорт и экономию энергоресурсов.

— ️ Участок с качественным забором и удобной подъездной дорогой обеспечит безопасность и удобство жизни круглый год.

— ️ Все помещения внутри дома отделаны качественными материалами: ламинат, современная керамическая плитка, надёжная сантехника, качественные натяжные потолки, стильный дизайн освещения, в каждой комнате предусмотрены закладные под люстры.

— ️ Современные коммуникации: электричество, газ, централизованное водоснабжение, канализация, автономный септик — всё готово к комфортной эксплуатации.

— ️ По соседству отличные добрые соседи и развитая инфраструктура района: школа, детский сад, магазины всего в нескольких минутах ходьбы, город всего в 10 минутах езды.

Это идеальное решение для семейного счастья и спокойствия, именно здесь ваш будущий уютный уголок мечты ждёт вас!

И самое приятное:

-объект соответствует условиям программы семейной ипотеки.

-дом сдали на регестрацию

-пока вы продаете свою квартиру, идет внутренняя отделка, вы можете по своему вкусу подобрать оттенок обоев, дверей и напольных покрытий.

Ждем вас на просмотр и готовы обсудить лучшие условия покупки вашего будущего дома!

Свяжитесь с нами прямо сейчас и сделайте первый шаг навстречу новой счастливой жизни вашей семьи!

Помощь в одобрении ипотеки.





Дата обновления: 8 ноября 2025